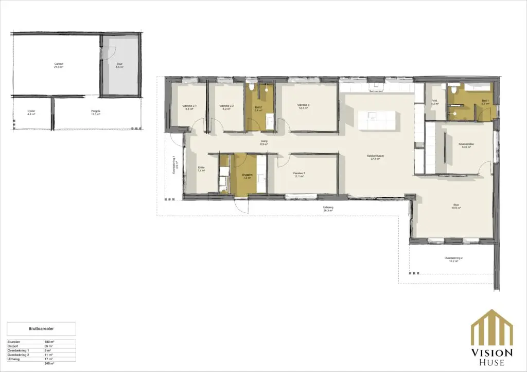
Plantegning 1021
Funkisvilla med præsentabel indgang
En funktionel funkisvilla med gennemgående køkken-alrum og centralt gangareal, der optimerer pladsen. Entreen er integreret i gangen og sikrer smidige adgangsforhold. Udefra giver et stort vinduesparti i gavlen og en fritstående carport et flot og indbydende indtryk.
Hos Vision Huse skaber vi både funktion og form – denne plan er til inspiration, lad os høre jeres visioner.









Skal vi tage en uforpligtende dialog?
Vi lytter til jeres ønsker og behov – og giver jer ærlig, professionel sparring om mulighederne.
Kontakt os i dag, så vi sammen kan tage det første skridt mod jeres nye drømmehjem.