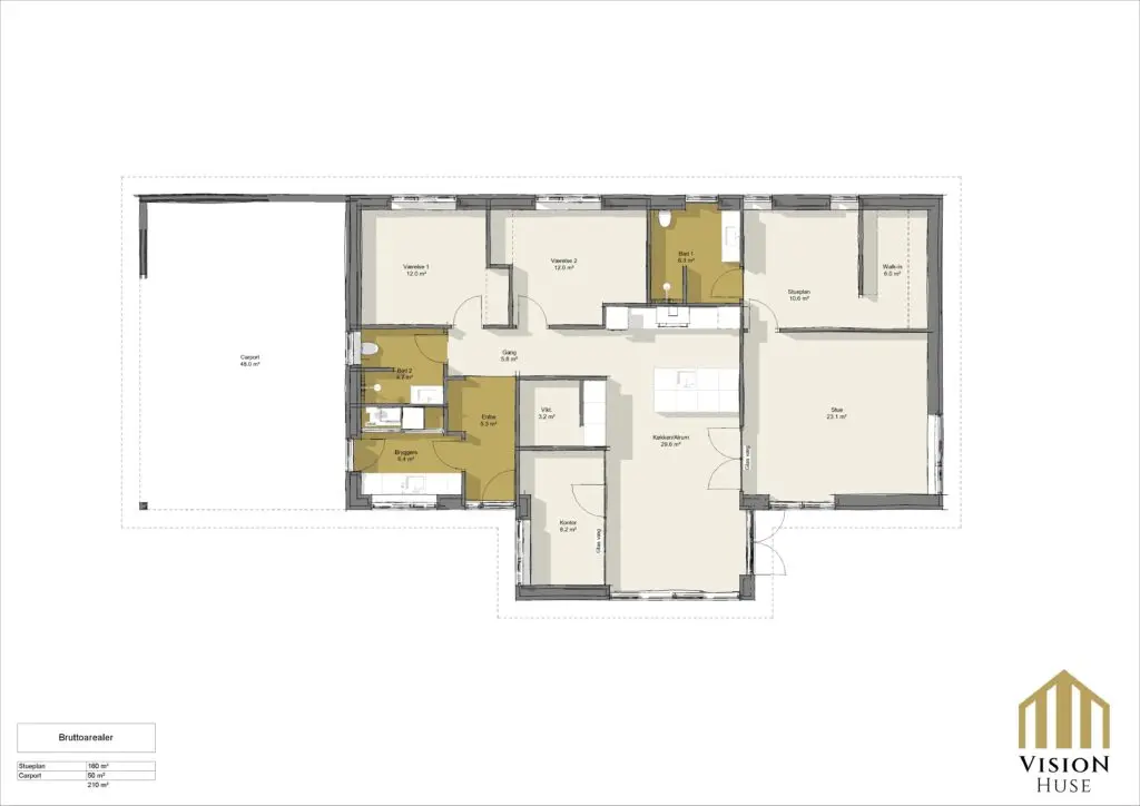
Plantegning 3006
Kompakt Villa med centralt kontor
En kompakt villa med 160 m², hvor hjemmearbejdspladsen er tænkt ind i hjertet af huset. Kontoret er lyst og centralt, med glasvæg og hjørnevindue, så det føles integreret med alrummet. Planen rummer desuden viktualierum, samlet værelsesafdeling og terrasser i flere retninger.
Hos Vision Huse finder vi plads til alt det vigtige – denne plan er til inspiration, lad os høre jeres visioner.





Skal vi tage en uforpligtende dialog?
Vi lytter til jeres ønsker og behov – og giver jer ærlig, professionel sparring om mulighederne.
Kontakt os i dag, så vi sammen kan tage det første skridt mod jeres nye drømmehjem.